0

NOYAL CHATILLON SUR SEICHE - Bâtiment à aménager en ville

Noyal-Châtillon-sur-Seiche (35230)
Réf : 7237
NOYAL CHATILLON SUR SEICHE - Longère d'environ 100m² au sol sur deux niveaux et sa petite dépendance à usage d'abri de jardin.
En plein bourg, cette longère en pierre et terre attend de prendre vie comme maison d'habitation. Ancienne dépendance à usage de stockage, le bâtiment est en bon état (toiture, charpente et murs) mais nécessite un aménagement complet avec permis de construire. Elle bénéficie d'une courette orientée au sud.
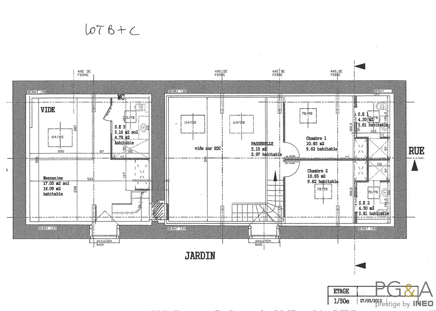
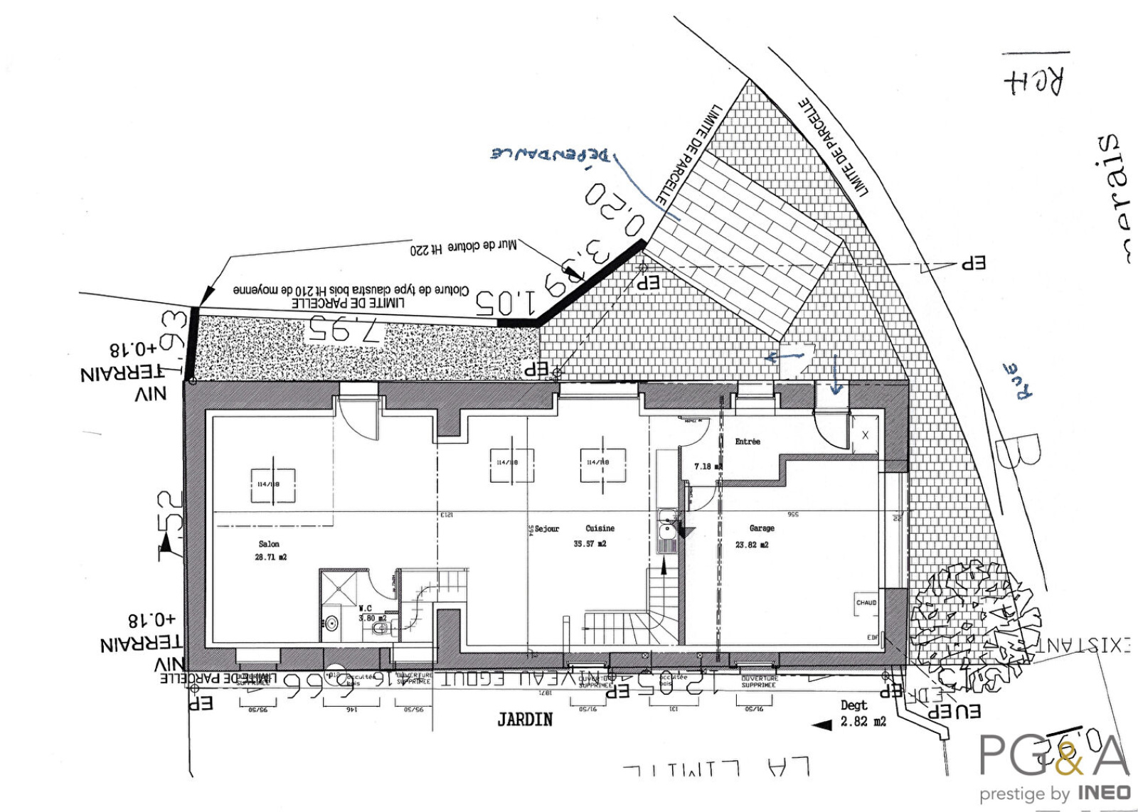
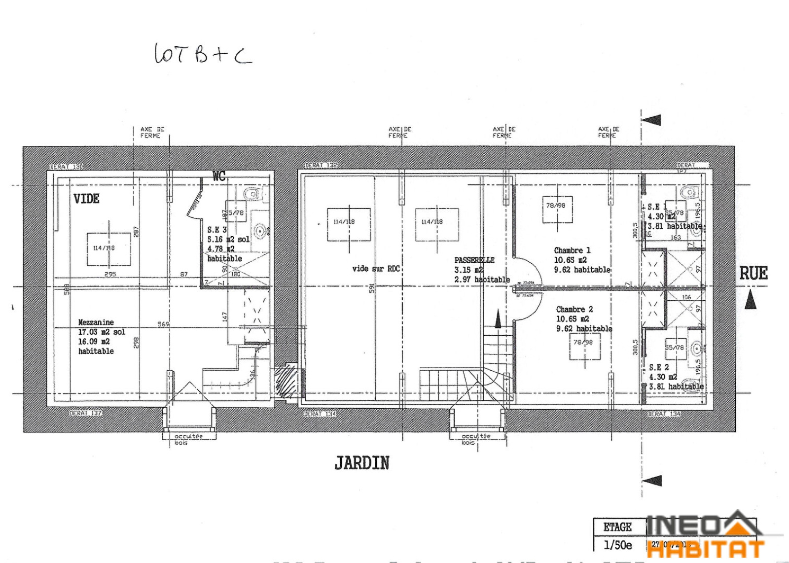
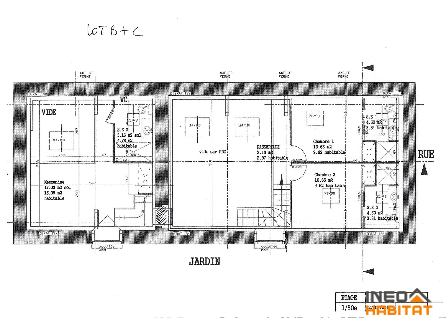
Un permis a été déposé pour sa rénovation, permis qui peut être repris en l'état ou modifié en en faisant la demande en mairie. La configuration et le permis déposés prévoient la création d'un garage accessible en pignon, d'un vaste espace de vie au RDC et de 3 chambres à l'étage. Les plans actuels proposent 150m² de surface habitable environ.
Les travaux liés au permis de construire restent à effectuer, le bâtiment est actuellement nu, vide et sans AUCUN aménagement. Compteur électrique déjà installé, compteur d'eau à installer. (5.00 % d'honoraires TTC à la charge de l'acquéreur.)
Prix du bien 147 000 €
Pièce(s) 5
Chambre(s) 3

Caractéristiques du bien

Caractéristiques Valeurs
Code postal 35230
Surface habitable (m²) 150 m²
surface terrain 224 m²
Nombre de chambre(s) 3
Nombre de pièces 5
Cuisine Sans
Mode de chauffage Autre
Type de chauffage Autre
Format de chauffage AUTRE
Balcon NON

Infos financières

Caractéristiques Valeurs
Prix de vente honoraires TTC inclus 147 000 €
Prix de vente honoraires TTC exclus 140 000 €
Honoraires TTC à la charge acquéreur 5 %

Bilans énergétiques

DPE GES
Ce bien vous intéresse ?
Fieldset par défaut
Fieldset par défaut
Validation

* Champs obligatoires

Contacter l'agence
Validation
Les informations recueillies sur ce formulaire sont enregistrées dans un fichier informatisé par La Boite Immo agissant comme Sous-traitant du traitement pour la gestion de la clientèle/prospects de l'Agence / du Réseau qui reste Responsable du Traitement de vos Données personnelles. La base légale du traitement repose sur l'intérêt légitime de l'Agence / du Réseau. Elles sont conservées jusqu'à demande de suppression et sont destinées à l'Agence / au Réseau. Conformément à la loi « informatique et libertés », vous disposez des droits d’accès, de rectification, d’effacement, d’opposition, de limitation et de portabilité de vos données. Vous pouvez retirer votre consentement à tout moment en contactant directement l’Agence / Le Réseau. Consultez le site https://cnil.fr/fr pour plus d’informations sur vos droits. Si vous estimez, après avoir contacté l'Agence / le Réseau, que vos droits « Informatique et Libertés » ne sont pas respectés, vous pouvez adresser une réclamation à la CNIL. Nous vous informons de l’existence de la liste d'opposition au démarchage téléphonique « Bloctel », sur laquelle vous pouvez vous inscrire ici : https://www.bloctel.gouv.fr Dans le cadre de la protection des Données personnelles, nous vous invitons à ne pas inscrire de Données sensibles dans le champ de saisie libre.
Ce site est protégé par reCAPTCHA, les Politiques de Confidentialité et les Conditions d'Utilisation de Google s'appliquent.